Structural Column beam and pipe support fabrication drawing download
Steel Structural fabrication drawing PDF download
Steel Structure column fabrication drawing download
Structural beam fabrication drawing download
Structural platform fabrication drawing download
Structural staircase fabrication drawing download
structural staircase railing fabrication drawing download
structural platform fabrication plan drawing download
एक जरूरी सूचना
यह सब ड्राइंग आप फ्री में डाउनलोड कर सकते हैं
लेकिन यह ड्राइंग आप किसी भी वीडियो में यूज नहीं कर सकते हैं
वरना आपको कॉपीराइट आ सकता है
यह सब स्ट्रक्चरल ड्राइंग का इमेज आपको देखने और सीखने के लिए दिया जा रहा है
यह सब आप ड्राइंग डाउनलोडिंग कर के देख सकते हैं और सीख सकते हैं
किस तरीका से ड्राइंग देखा जाता है
टॉप व्यू ,साइड व्यू, फ्रंट व्यू, क्या होता है,
स्ट्रक्चर ड्राइंग में बीम किसे कहते हैं
स्ट्रक्चर ड्राइंग में चैनल किसे कहते हैं गसेट प्लेट किसे कहते हैं
स्ट्रक्चर ड्राइंग में बेस प्लेट किसे कहते हैं
और ज्यादा जानकारी के लिए आप हमारा यूट्यूब चैनल देख सकते है
https://www.youtube.com/@steelfittertraining
An important note:
You can download all these drawings for free.
But you cannot use these drawings in any video.
Otherwise, you may incur copyright.
These structural drawing images are provided for your viewing and learning.
You can view and learn all this by downloading the drawings.
How to view a drawing. What is a top view and a side view?
What is a beam in a structural drawing?
What is a channel in a structural drawing? What is a gusset plate?
What is a base plate in a structural drawing?
For more information, you can check out our YouTube channel.
I’ve provided links to all those videos below. You can also watch and learn from there.
इस वेबसाइट में इस्तेमाल की गई ड्राइंग सिर्फ़ एजुकेशनल और लर्निंग के लिए इस्तेमाल की गई है।
The drawing used in this website is used only for educational and learning

यह एक स्ट्रक्चरल बीम फैब्रिकेशन ड्राइंग हैं
This is a structural beam fabrication drawing
Fittings Names
H Beam, Gusset plate

यह एक स्ट्रक्चर प्लेटफार्म फैब्रिकेशन टॉप व्यू ड्राइंग हैं
This is a structure platform fabrication top view drawing
Fittings name
Beam, channel, angle, flat bars, pipe

यह एक स्ट्रक्चर प्लेटफार्म फैब्रिकेशन साइड व्यू और फ्रंट व्यू ड्राइंग हैं
This is a structure platform fabrication side view and front view drawing
Fittings name
Beam, channel, angle, flat bars, pipe

यह एक स्ट्रक्चर सीढ़ी हैंडलिंग साइड व्यू फैब्रिकेशन ड्रॉइंग हैं बाया साइड
This is a structure stair handling side view fabrication drawing left side
Fittings name
90 degree Angle, Pipe, Flat Bar

यह एक स्ट्रक्चर सीढ़ी हैंडलिंग साइड व्यू फैब्रिकेशन ड्रॉइंग हैं दाहिना साइड
This is a structure stair handling side view fabrication drawing right side
Fittings name
90 degree Angle, Pipe, Flat Bar

यह एक स्ट्रक्चर सीढ़ी और हैंडलिंग साइड व्यू फैब्रिकेशन ड्रॉइंग हैं
This is a structure ladder and handling side view fabrication drawing
Fittings name
PFC Channel, angle, Staircase grating, Pipe, flat Bar

यह एक स्ट्रक्चर प्लेटफार्म हन्ड्रेलिंग प्लान टॉप व्यू ड्राइंग हैं
This is a structure platform handrail plan top view drawing

यह एक स्ट्रक्चरल कॉलम फैब्रिकेशन ड्राइंग हैं
This is a structural column fabrication drawing
Front view and side view and top view
Fittings name
UC Beam, Base plate, Gusset plate, Stiffener plate

यह एक स्ट्रक्चरल बीम फैब्रिकेशन ड्राइंग हैं
This is a structural beam fabrication drawing
Front view and top view
Fittings Names
UC Beam, Gusset plate, flange hole plate

यह एक स्ट्रक्चरल बीम फैब्रिकेशन ड्राइंग हैं
This is a structural beam fabrication drawing
Front view and side view
Fittings Names
UC Beam, Stiffener plate

यह एक स्ट्रक्चरल बीम फैब्रिकेशन ड्राइंग हैं
This is a structural beam fabrication drawing
Front view and top view
Fittings Names
UC Beam, angle

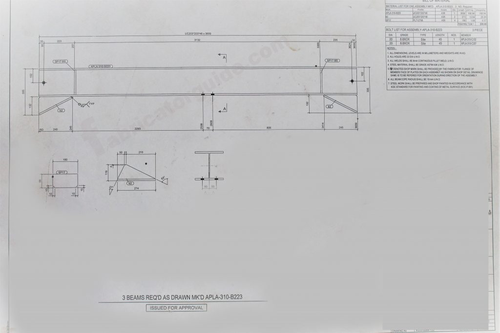
यह एक स्ट्रक्चरल बीम फैब्रिकेशन ड्राइंग हैं
This is a structural beam fabrication drawing
Front view and top view
Fittings Names
PDC Channel, Gusset plate

यह एक स्ट्रक्चर पाइप सपोर्ट फैब्रिकेशन साइड व्यू और फ्रंट व्यू ड्राइंग हैं
This is a structure pipe support fabrication side view and front view drawing
Fittings name
UC Beam, Base plate, Gusset plate, Stiffener plate, Top plate

यह एक स्ट्रक्चरल कॉलम फैब्रिकेशन ड्राइंग हैं
This is a structural column fabrication drawing
Front view and side view and top view
Fittings name
Structural Beam, Base plate, Gusset plate, Stiffener plate, flange hole plate

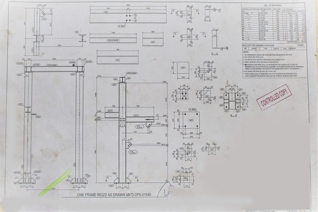
यह एक स्ट्रक्चरल कॉलम फैब्रिकेशन ड्राइंग हैं
This is a structural column fabrication drawing
Front view and side view and top view
Fittings name
Structural Beam, Base plate, Gusset plate,
Stiffener plate, flange hole plate, angle

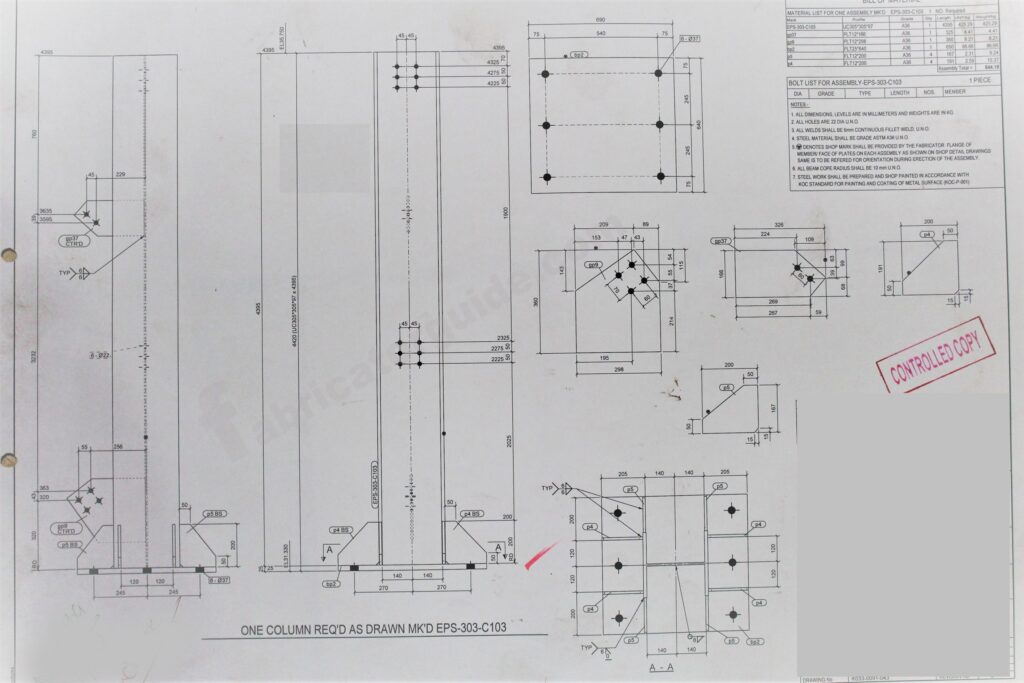
यह एक स्ट्रक्चरल कॉलम फैब्रिकेशन ड्राइंग हैं
This is a structural column fabrication drawing
Front view and side view and top view
Fittings name
Structural Beam, Base plate, Gusset plate,
Stiffener plate, flange hole plate

